Listing Tools

Listed by James Goddard of Coldwell Banker Realty Nashua (603-673-4000)

Listing Sold by Duston Leddy Real Estate
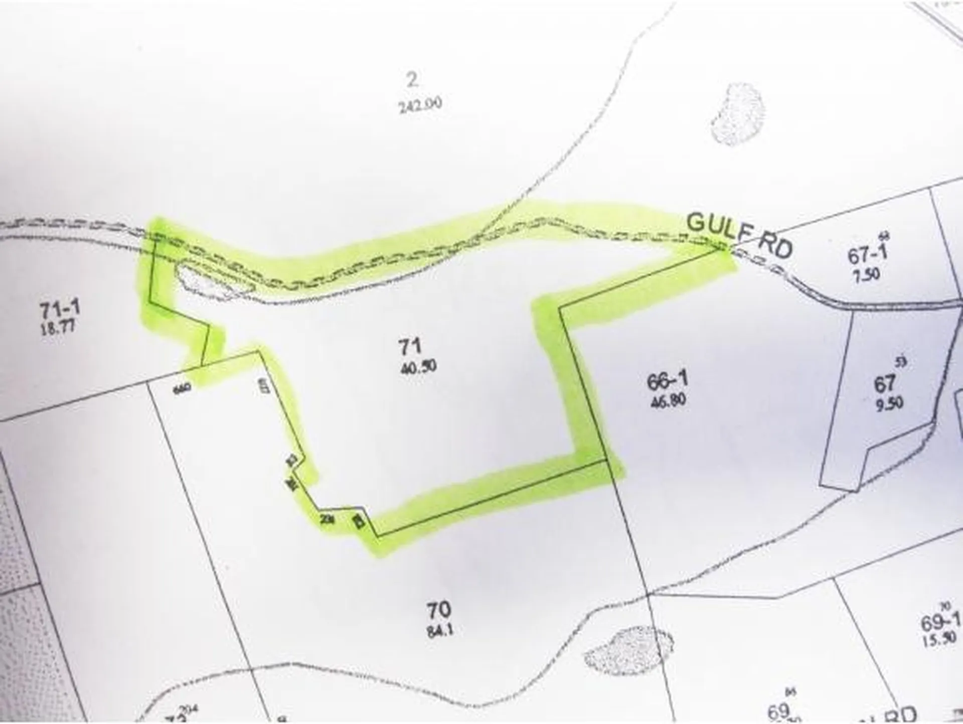
40.5 acres of land that was surveyed back in 1976. Gulf Road used to be a town maintained road all the way to Peterborough, however there is an apx. 2 mile section that is no longer, and this piece is right where the town maintained portion pretty much ends. The land is level in the front, has a small stream that goes down a good portion of the 2700 feet of the road frontage, and slopes upward as you go to the back. There will most likely be a restriction put on this one that it cannot be further sub-divided, but if you are looking for a great private location that is less than 15 minutes to Milford, or perhaps a great getaway, it is hard to beat this one. You do get some local views as you go up on the land, and it abuts apx. 1,000 conservation acres. I used to catch trout on the swamp in the front of this land as a kid :) Road would need to be brought up to town specs and the town would need to accept it for it to be a building lot. But at this price and how great a private location it is, it is worth the trouble!

Property Details of R9-71 Gulf Road

Map Location

Driving Directions

Broker Reciprocity 

Copyright 2025 PrimeMLS, Inc. All rights reserved. This information is deemed reliable, but not guaranteed. The data relating to real estate displayed on this display comes in part from the IDX Program of PrimeMLS. The information being provided is for consumers’ personal, non-commercial use and may not be used for any purpose other than to identify prospective properties consumers may be interested in purchasing. Data last updated November 14, 2025 9:38 PM EST

 

Hi there! How can we help you?

Contact us using the form below or give us a call.

Send Us A Message:

I agree to receive marketing and customer service calls and text messages from Hearthside Realty. To opt out, you can reply 'stop' at any time or click the unsubscribe link in the emails. Consent is not a condition of purchase. Msg/data rates may apply. Msg frequency varies. Privacy Policy.

Do not fill in this field:

This site is protected by reCAPTCHA and the Google Privacy Policy and Terms of Service apply.

Hi there! How can we help you?

Contact us using the form below or give us a call.

Send Us A Message:

Do not fill in this field:

This site is protected by reCAPTCHA and the Google Privacy Policy and Terms of Service apply.

Hi there! How can we help you?

Contact us using the form below or give us a call.

Send Us A Message:

Do not fill in this field:

This site is protected by reCAPTCHA and the Google Privacy Policy and Terms of Service apply.

Do not fill in this field:

This site is protected by reCAPTCHA and the Google Privacy Policy and Terms of Service apply.

Do not fill in this field:

This site is protected by reCAPTCHA and the Google Privacy Policy and Terms of Service apply.

Do not fill in this field:

This site is protected by reCAPTCHA and the Google Privacy Policy and Terms of Service apply.

$

Do not fill in this field:

This site is protected by reCAPTCHA and the Google Privacy Policy and Terms of Service apply.